央北重劃加盟店
(02)8667-7055
新店北新加盟店
(02)2913-6777
首 頁
物件搜尋
我的收藏
優質團隊
優質社區
購屋試算
聯絡我們
部落格
友善連結
寶興裕隆城一樓
(051924)
總價
1,380
萬元
1,700 萬元
降價通知我
座落
新北市新店區寶興路
坪數
26.31
坪
地坪
7.89
坪
單價
52.45
萬元
物件型態
住辦
用途現況
自住(用)
謄本用途
工業用
格局
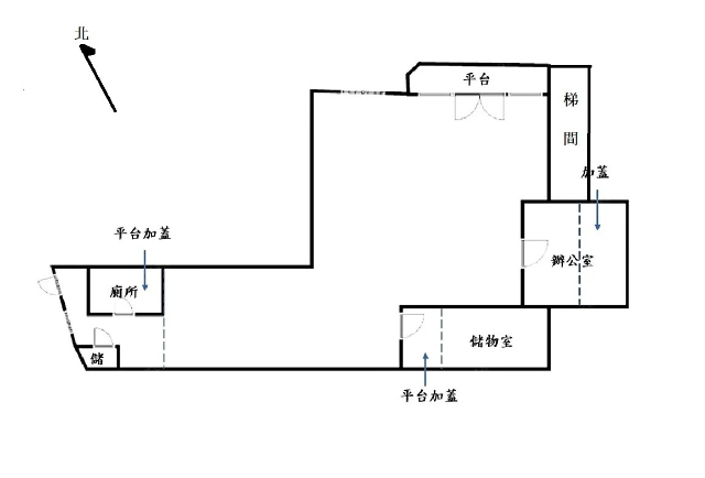
1房/ 2廳/ 1衛
樓層
1 / 5樓
朝向
座東南向西北
屋齡
42年
建物結構
鋼筋混凝土
建物外觀
磁磚
車位
無
邊間
否
採光
2 面
公園綠地
寶興60巷公園
學校學區
北新國小
交通站名
寶興路60巷
社區商場
文化綠村; 美廉社
特色說明
臨近裕隆城一樓自用租賃皆可
權狀資料
主建物
24.91
坪
附屬建物
1.40
坪
公共設施
0.00
坪
土地面積
7.89
坪
公設車位
0.00
坪
權狀車位
0.00
坪
使用分區
乙種工業區
坪數=主建物+附屬建物+公共設施(包含公設車位)+權狀車位。
主建物係指客廳、餐廳、臥房、浴室、廚房等室內面積。
公共設施係指區分所有建物之全部或部分所有共用之建物面積,像是樓梯間、電梯間、屋頂突出物等。
上述係由一平方公尺=0.3025坪換算,詳細資料仍以地政機關核發之謄本為準。
央北重劃加盟店
樂天不動產有限公司
(02)8667-7055
感謝點閱,歡迎與我聯絡!
您好,我是陳志豪。
請撥我的手機
0958-903-906
或加我 LINE 好友
由我為您提供服務。
本物件的地圖參考位置
環景照片
※ 本網頁所刊登照片如為道路街景或土地示意圖,非廣告標的所在地僅供參考,實際狀況請依使用執照或謄本所載為準。
更多物件
 同區類似物件推薦:
寶興一樓廠商辦
1,680萬元
/
27.34坪
資料處理中,請稍等。